SQUIRREL HOUSE PLANS

FILE_ID: SQUIRREL

Welcome to the world of squirrel house plans! If you're an avid birdwatcher or a nature enthusiast, you've likely encountered these charming creatures scurrying up trees and collecting acorns. But have you ever wondered what it would be like to provide a cozy home for these furry friends? Well, wonder no more! In this introduction, we will explore the fascinating concept of creating a squirrel house and the benefits it brings to both the animals and the environment.

Squirrels, like many other wildlife species, require suitable habitats for shelter, nesting, and raising their young. By designing and building squirrel houses, we can offer them a safe haven, especially in urban areas where natural habitats might be limited. These structures are typically small, enclosed spaces with entry holes, providing a place for squirrels to retreat, rest, and even raise their families.

The benefits of such an initiative are numerous. Firstly, it promotes wildlife conservation by providing a means for squirrels to thrive in human-dominated environments. This can help maintain a healthy ecosystem and contribute to biodiversity. Secondly, it offers an entertaining and educational experience for birdwatchers and nature enthusiasts, allowing them to observe these playful creatures up close.

In the following sections, we will delve into the design considerations, materials, and step-by-step process of building a squirrel house. So, get ready to embark on a journey of creating a cozy haven for our furry friends!

Visual Evidence (45)
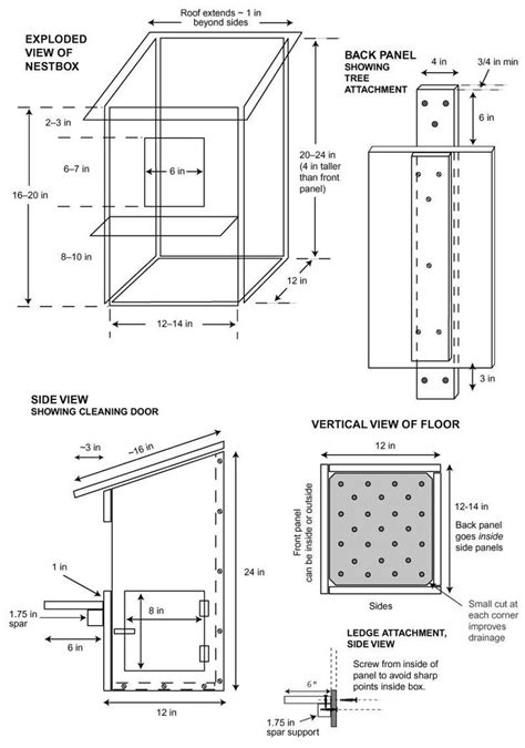
Nest Box
Nest Box
A cozy, wooden squirrel house with a small, round ...
Mason Jar
Mason Jar
This image shows a squirrel house made from natura...
Open Side
Open Side
A close-up of a squirrel house's intricate lattice...
How Build
How Build
A squirrel house with a modern, sleek design, feat...
For Making
For Making
A colorful, hand-painted squirrel house with a vib...
For Building
For Building
A squirrel house with a large, open window and a s...
Build
Build
A detailed view of a squirrel house's interior, sh...
Printable
Printable
A squirrel house with a unique, spiral staircase l...
Flying
Flying
A squirrel house with a large, flat roof and a sma...
For
For
A squirrel house with a natural, bark-like exterio...
Free
Free
A squirrel house with a modern, minimalist design,...
Wooden
Wooden
A squirrel house with a large, open window and a s...
Squirrel Nesting House Plans
Squirrel Nesting House Plans
A squirrel house with a unique, hexagonal design, ...
Bird
Bird
A squirrel house with a natural, stone exterior an...
Homemade
Homemade
A squirrel house with a large, open window and a s...
Grey
Grey
A squirrel house with a modern, sleek design, feat...
Southern Flying
Southern Flying
A squirrel house with a unique, spiral staircase l...
Gray
Gray
A squirrel house with a large, flat roof and a sma...
Red
Red
A squirrel house with a natural, bark-like exterio...
Deluxe
Deluxe
A squirrel house with a modern, minimalist design,...
Wild
Wild
A squirrel house with a unique, hexagonal design, ...
Fox
Fox
A squirrel house with a natural, stone exterior an...
Northern Flying
Northern Flying
A squirrel house with a large, open window and a s...
Printable Squirrel House Plans
Printable Squirrel House Plans
A squirrel house with a unique, spiral staircase l...
Printable Squirrel House Plans
Printable Squirrel House Plans
A squirrel house with a large, flat roof and a sma...
Squirrel House Plans: An In-Depth Guide - House Plans
Squirrel House Plans: An In-Depth Guide - House Plans
A squirrel house with a natural, bark-like exterio...
DIY Squirrel House Plans
DIY Squirrel House Plans
A squirrel house with a modern, sleek design, feat...
Printable Squirrel House Plans - Educational Printable Activities
Printable Squirrel House Plans - Educational Printable Activities
A squirrel house with a unique, hexagonal design, ...
Image
Image
A squirrel house with a natural, stone exterior an...
DIY Squirrel House Plans
DIY Squirrel House Plans
A squirrel house with a large, open window and a s...
Diy Squirrel House - Simple DIY Fixes
Diy Squirrel House - Simple DIY Fixes
A squirrel house with a unique, spiral staircase l...
Image
Image
A detailed look at squirrel house plans ....
squirrel+house+plans | How to Build a Tree House for Squirrels ...
squirrel+house+plans | How to Build a Tree House for Squirrels ...
A detailed look at squirrel house plans ....
Printable Squirrel House Plans
Printable Squirrel House Plans
A detailed look at squirrel house plans ....
Printable Squirrel House Plans - Printable Word Searches
Printable Squirrel House Plans - Printable Word Searches
A detailed look at squirrel house plans ....
Printable Squirrel House Plans | dev.onallcylinders.com
Printable Squirrel House Plans | dev.onallcylinders.com
A detailed look at squirrel house plans ....
Printable Squirrel House Plans | Plan Your Year Easily!
Printable Squirrel House Plans | Plan Your Year Easily!
A detailed look at squirrel house plans ....
Plans For A Squirrel House at Hannah Belisario blog
Plans For A Squirrel House at Hannah Belisario blog
A detailed look at squirrel house plans ....
(+9) Squirrel House Plans Sensational Design Picture Collection
(+9) Squirrel House Plans Sensational Design Picture Collection
A detailed look at squirrel house plans ....
Printable Diy Squirrel Feeder Plans - Printable Learning Sheets
Printable Diy Squirrel Feeder Plans - Printable Learning Sheets
A detailed look at squirrel house plans ....
Image
Image
A detailed look at squirrel house plans ....
Squirrel Nest Box, Build It Yourself Squirrel House Kit, DIY Gray ...
Squirrel Nest Box, Build It Yourself Squirrel House Kit, DIY Gray ...
A detailed look at squirrel house plans ....
Squirrel House Plan at Clemente Herrera blog
Squirrel House Plan at Clemente Herrera blog
A detailed look at squirrel house plans ....
Squirrel Houses How To Build at Janet Simmons blog
Squirrel Houses How To Build at Janet Simmons blog
A detailed look at squirrel house plans ....
Printable Squirrel House Plans - Educational Printable Activities
Printable Squirrel House Plans - Educational Printable Activities
A detailed look at squirrel house plans ....